溫州環網柜操作安裝維護說明-上海上繼科技有限公司
發表時間:2022-09-21 14:01 瀏覽次數:678 〖返回〗一、概述
溫州環網柜是通過相關機構檢測實驗并且技術性能都是達到標準要求,同時產品具備優秀的質量品質以及性能穩定可靠。環網柜當中開關是使用優質的六氟化硫負荷開關,設備柜體的結構設計合理而且緊湊,將整體的體積進行了優化改進使其縮小,讓工作人員們在安裝的時候更加方便。而且具有操作靈活簡便的特點同時不會影響到正常的運行穩定及安全問題,還可以做到免維護免維修等優點設備廣泛的運用于10千伏的配電系統之中。
二、結構
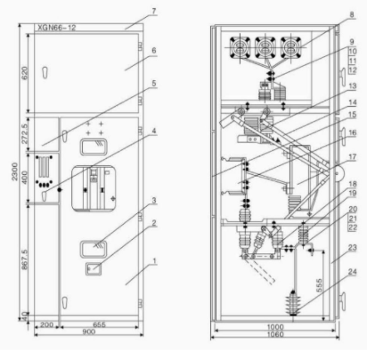
溫州環網柜的柜體是采用了兩毫米的鋁鋅板或者是優質的碳素冷軋鋼板,并且是經過了加工處理之后將其噴塑而成。使其外表看起來整體更加美觀還具有抗腐蝕等能力,呈現出的柜體體積更加小巧有利于組裝組合時操作方便。設備內部可以分做四個安裝室也稱之為單元模塊,后面板能夠額外設置兩個壓力釋放裝置。環網柜可以做到按照用戶的不同需求來進行設計,能夠單元模塊隨意組合擴展拼接實現快速安裝而且占地面積小。

三、操作
溫州環網柜在工作人員執行操作的時候要考慮到他們的人身安全,所以我們在設備上面設置了機械聯鎖功能,工作人員需要熟悉操作準則就可以進行實踐。首先操作的原則以及機械聯鎖說明,在設備中負荷開關關閉上之后,接地就會處于斷開的狀態所以是不可以進行操作的而且下門不能夠打開。而在此門打開之后是可以接觸到負荷開關所連接的各項出線、電纜饋線及接地開關等,所以要確保在斷開電源的情況下謹慎操作。在操作的之前要確定負荷開關是處于接地狀態,進入到母線室操作的時候要再三確認進線開關是斷開的,這時的指示燈會是熄滅的狀態。其次在安裝電動操作配置的時候先裝操作機構,然后再安裝程序和其它的普通機構,要嚴格的按照接線圖進行裝配環網柜中的控制元器件和二次線,操作開關的時候檢查電源各項參數確定正確之后才可以進行送電,開關的分合閘操作就是按下相對應的按鈕就行。最后就是要在操作的時候記住規范要求。
四、安裝維護
在安裝出線溫州環網柜的熔斷器時,先打開熔絲蓋然后把熔斷器頂入熔絲上端槽,最后推入到下熔絲底座當中。柜體與電纜室的連接安裝,在柜體的兩側板面上都有4個提前打好的孔但是有的柜體板面擁有5個孔,它們的作用就是用于電纜室內部的各個箱體進行連接。設備的預防性日常維護工作,需要環境是在沒有充滿導電灰塵或者是化學腐蝕等物質氣體存在的地方,這樣的話柜體可以實現免維護保持十多年的正常運行。在實行故障檢修的時候必須要將設備中的開關都處于接地狀態,如果出現了熔斷器燒毀的話必須要全部更換。
公司介紹:上海上繼科技有限公司是一家專業從事電力系統繼電保護及智能電網電力自動化產品的研發、設計、生產、銷售和服務為一體的高科技公司。擁有資深繼電保護專家團隊和國內**的檢測儀器及校驗設備。同時還引用國內外先進技術,來進行技術創新。本公司的產品廣泛用于電力、工礦、鐵路、建筑等國家重大工程輸配變電系統上,產品遠銷東南亞及中東地區。產品通過國家繼電保護及自動化設備質量監督檢驗中心檢測,獲得ISO9001國際質量體系認證。“科技創新,誠信務實”是公司的經營理念,本公司以高超的技術支持和對用戶高度負責的售后服務贏得了輸配電成套企業的信賴,且樹立了良好的信譽。
公司主營:繼電器(時間繼電器,電壓繼電器,電流繼電器,中間繼電器,信號繼電器,閃光繼電器,沖擊繼電器,同步檢查繼電器,接地繼電器,差動繼電器,重合閘繼電器,絕緣監視繼電器,雙位置繼電器,模數化繼電器),智能操控裝置,微機保護裝置,電力儀表
上海上繼科技有限公司(專注電力保護繼電器生產廠家)銷售熱線:021-57233089 QQ:1932551438
{以上內容僅供參考,上海上繼科技有限公司有最終解釋權}
更多繼電器精彩文章——ZJX-3A剪斷銷信號裝置技術條件及主要性能
- 上一篇:溫州環網柜種類優點及問題解決
- 下一篇:溫州固體柜基本介紹





